Портфолио
Расчет стоимости
Отзывы
Контакты
Аудит сметы
Сертификаты
 
 

Федеральная ремонтно-строительная компания. Закажите технический проект и убедитесь в качестве работ

Закажи технический проект и сэкономь до 20% бюджета на ремонте
страхование на 1 000 000 рублей в подарок!

Технический проект

Необходимый комплект проектных решений и технических документов, позволяющий выполнить ремонтные работы на объекте в полном объеме.
С ним вам не нужно объяснять, где сделать розетку или на каком уровне устанавливать выключатель - все это есть в плане.
Кроме того, технический проект позволяет заранее рассчитать стоимость работ и спланировать бюджет на ремонт.

Технический проект состоит из документов:

Технический чертеж
Объемы и метражи
Работа

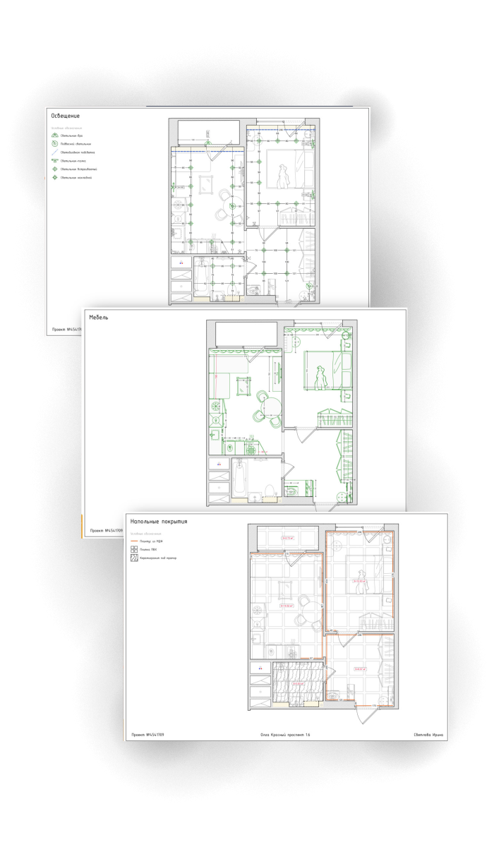
Технический чертеж включает:

  • Обмерный план
  • План монтажа перегородок
  • План расстановки мебели и оборудования
  • План осветительных приборов
  • Схема подключения светильников
  • План размещения розеток, выключателей и электровыводов
  • План потолка
  • План напольного покрытия
  • Схема размещения теплого пола и кондиционеров
  • План привязки сантехнического оборудования

Стилистическое решение

Мы оказываем полный перечень услуг, чтобы вы могли визуально представлять как будет выглядеть ваш интерьер. Поэтому к техническому проекту можно заказать легкую визуализацию, которая не привязывается к конкретной мебели, светильникам и материалам, а показывает объемное и цветовое понимание интерьера

Полный дизайн проект

Это пакет документов, который детально отражает концепцию будущего интерьера: цветовые решения, композицию, расположение мебели и света.
В полный дизайн проект входят:
2
Стилистическое решение
Помогает заказчику представить визуально будущий интерьер
3
ведомость - объемы и метражи
В ней отражается количество отделочных материалов для помещений. На основе этого рассчитывается примерная стоимость проекта
4
Ведомость - работы
Общая ведомость по всем работам, которые будут выполнены в процессе осуществления дизайн-проекта
1
технический проект
Чертежная документация отражает пошагово, как нужно проводить ремонтные работы по конкретному проекту

Осуществим полный цикл: от разработки дизайн-проекта до его реализации

Разработаем дизайн интерьера, учитывая Ваши предпочтения
Выполним все необходимые чертежи для ремонтных работ по вашему объекту: планирование сантехники, электрики, план по напольному покрытию и т.д.
Осуществим все виды ремонтных и строительных работ
Создадим качественные и эстетичные визуализации, которые помогут вам понять, как будет выглядеть ваш будущий интерьер, с учетом всех деталей
Выполним контроль качества выполняемых работ на вашем объекте, согласно утвержденного проекта
Подберем все необходимые материалы и полную комплектацию (мебель, шторы, светильники и т.д.)
Под ключ - заходи и живи!

Убедитесь в качестве работ!

Оставьте контактные данные и получите портфолио проектов
+7 (925) 421-17-45
Telegram
ООО "ПРОФ-РЕМ-СТРОЙ" ИНН 7720909441 ОГРН 1237700689357
Адрес: г. Владимир, улица Мира 61А
Обсудим ремонт? Telegram
Phone
Made on
Tilda